New Build
Suva, Fiji
2014-2015
Project Value
Project Budget FJD 2.5mil.
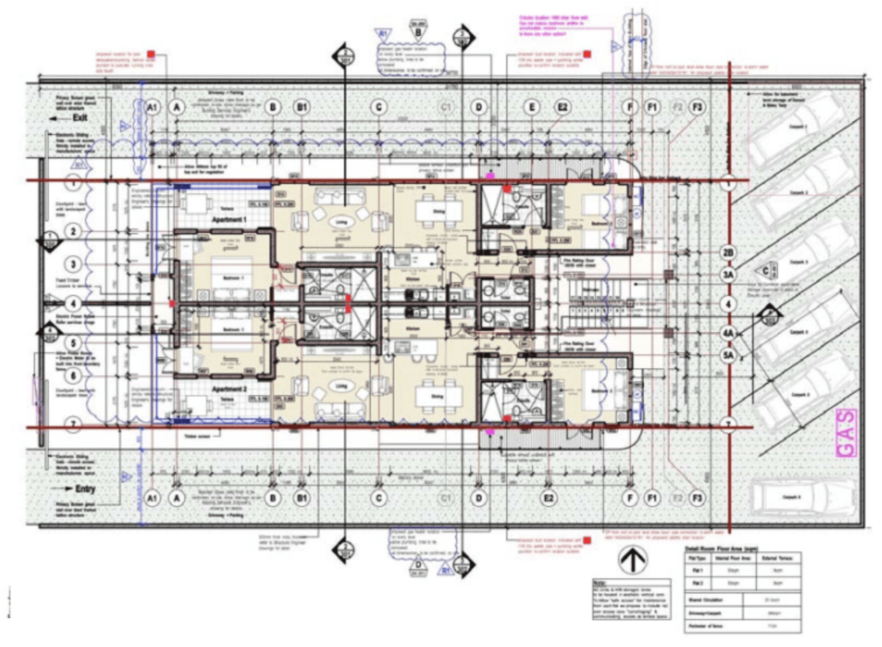
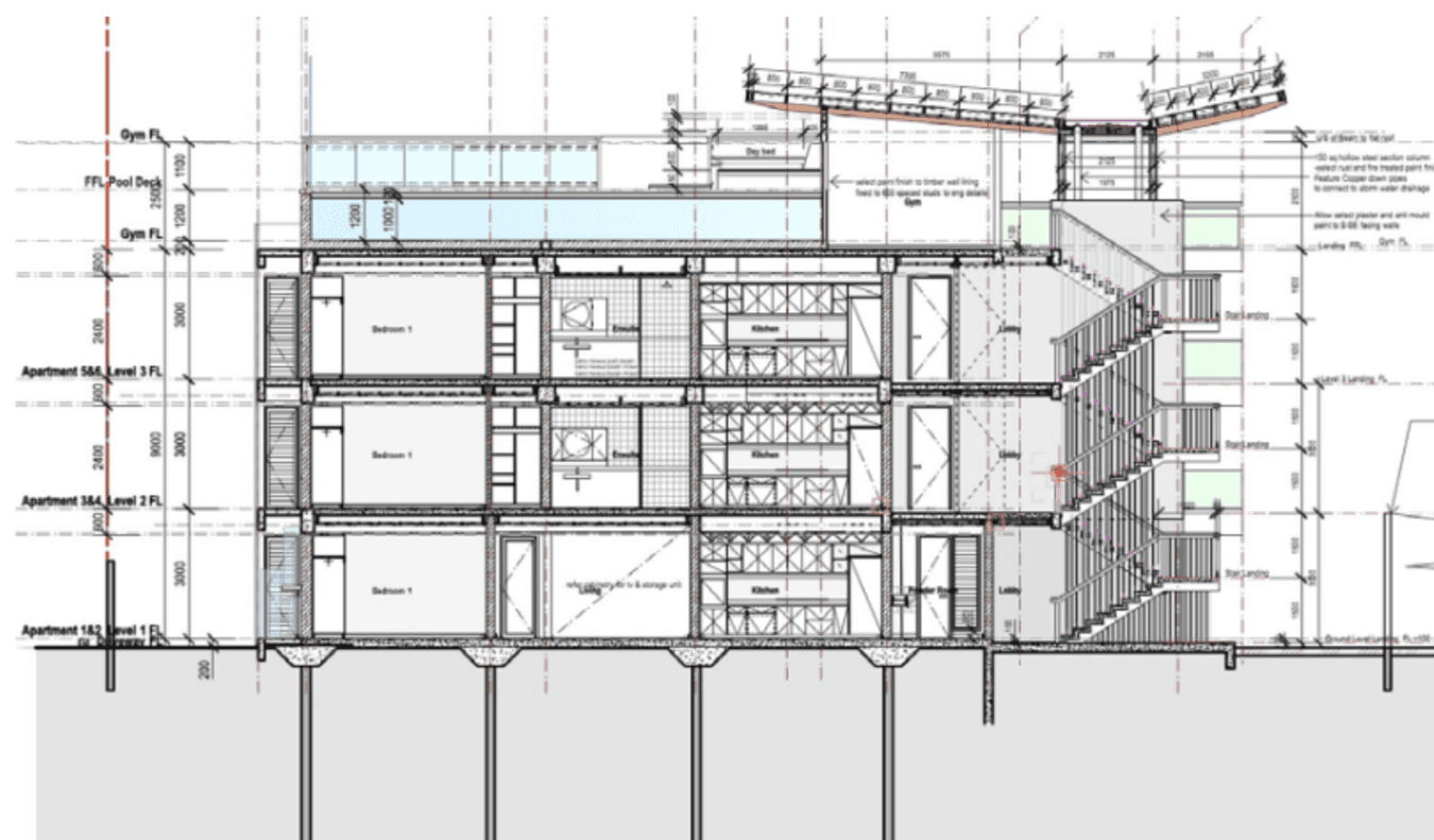
New Build- Multi-Unit Development
6 Apartments, Communal Pool & Gym on Roof
Scope
Job Title: Project Architect
(while with AAPiDesign)
Conceptual - Building permit Design & Tender Documentation, Procurement, Contract Admin
The client was highly motivated to create a unique and economically feasible project that would provide tenants with a modern lifestyle filled with luxury and comfort. The design plan allowed for the construction of six apartments, with two on each level, spanning the entire length of the building. Additionally, a gym and lap pool were incorporated on the rooftop. The apartments are strategically oriented to open up to the windward side, capitalizing on the long and narrow layout to easily achieve cross ventilation, thereby ensuring cooling during the hotter months. Furthermore, all large openings leading to habitable spaces are shaded to effectively block out the sun's heat while welcoming ample daylight. This outstanding project received a commendation award at the 2016 Fiji Architects Association Architecture Awards, underscoring its innovative design and contribution to the architectural landscape.




